..
befunky sample 5

Putinuose atsiras lauko treniruokliai ir aikštelės įvairiems žaidimams

Švietimaslapkr. 01 2021, 15:27

Putinuose, netoli Alytaus sporto ir rekreacijos centro arenos, šalia Jaunimo parko, atsiras aikštynai, skirti įvairių sporto šakų žaidimams.

1635773682730 scaled
Alytausgidas.lt nuotr.
Bus įrengta universali krepšinio, tinklinio ir lauko teniso aikštelė, atnaujinta aptverta minifutbolo aikštelė, taip pat veiks lauko treniruokliai, lietaus nuotekų surinkimo bei drenažo sistemos, o kad viskas tarnautų ilgiau – ir vaizdo stebėjimo kameros.
1635773784916 scaled
Alytausgidas.lt nuotr.
Visa tai finansuojama iš Europos sąjungos, po įrengimo priklausys Putinų gimnazijai, tačiau turės būti prieinama ir gyventojams.
img 20211023 160624 scaled
Alytausgidas.lt nuotr.
Sporto aikštynų Šaltinių g. 1 įrengimo ir rekonstrukcijos darbų ėmėsi Vilniaus rajone registruota bendrovė „Dylas“, dar žinoma kaip ekoplay.lt, gaminanti vaikų žaidimo aikštelių įrenginius, lauko treniruoklius, mažąją architektūrą bei dangas sporto aikštynams.
saltdscf1686 2 scaled
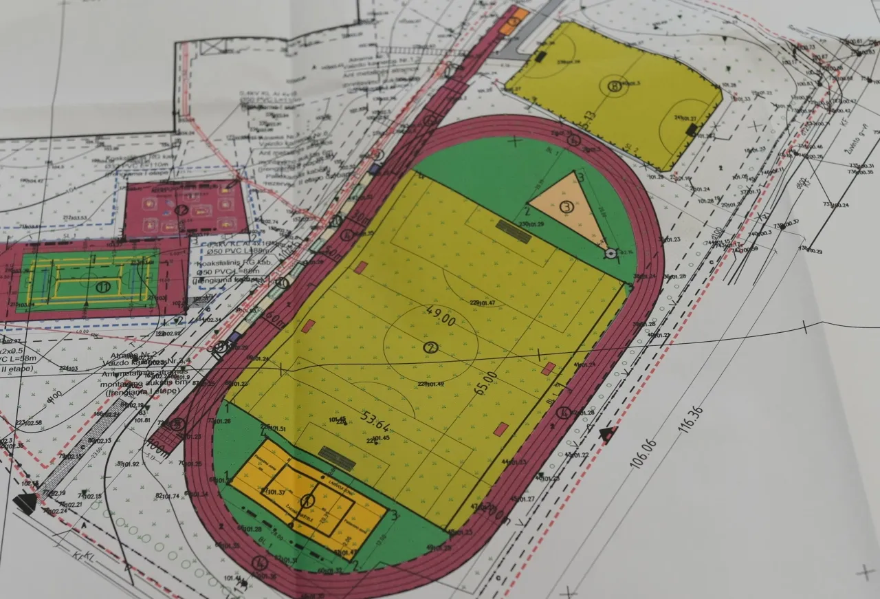
Pagal planą minifutbolo aikštelė išliks toje pačioje vietoje šalia Šaltinių gatvės, o nauja universali aikštelė bus pastatyta kitoje Putinų progimnazijos stadiono pusėje, arčiau Alytaus SRC arenos
Alytaus miesto savivaldybės paskelbtame konkurse vilniečiai varžėsi su penkiomis įmonėmis ir jį laimėjo antroje vietoje palikdami Kančėnuose (Alytaus r.) registuotąją „Gilmerą“.
1635773784908 scaled
Alytausgidas.lt nuotr.
Darbai, kuriie kainuos 179 tūkst. 80 eurų jau pradėti. Aikštynų atnaujinimą planuojama stabdyti, jeigu žiemą nebus tinkamų oro sąlygų dangai lieti. Po to darbai bus atnaujinti pavasarį ir baigti birželio mėnesį.
1635773682737 scaled
Alytausgidas.lt nuotr.
Nauja tinklinio ir lauko teniso aikštelė su bus 40 x 20 m dydžio, o minifutbolo aikštelė išliks to paties formato kaip ankstesnioji.